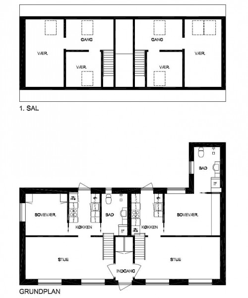
Åboulevarden 1

Dobbelthus oprindeligt opført i 1890.

Gennemgribende istandsat både udvendigt og indvendigt. Facaden er renoveret med armeret puds for at imødegå revner. Der er isat vinduer passende til husets oprindelige stil, nye betonsålbænke samt udført tag med rød vingetegl, som huset oprindeligt var opført med. I forbindelse med udnyttelse af 1. salen er der udført undertag og isat tagvinduer. 

Brdr. Lange har gennemført projektet i totalentreprise

boulevarden-1-plantegninger3.JPG

 

 

Billeder

© Copyright · 2010 - Brdr. Lange A/S - v/Martin Jakobsen